Delta Invest Agence
Télécharger la fiche

Autre 6 pièce(s) 138 m²

Le Pont-de-Beauvoisin (73330)
180 000 € Référence 4

A propos de ce bien

Local professionnel / commercial à Pont-de-Beauvoisin (73330) – 180 000 €

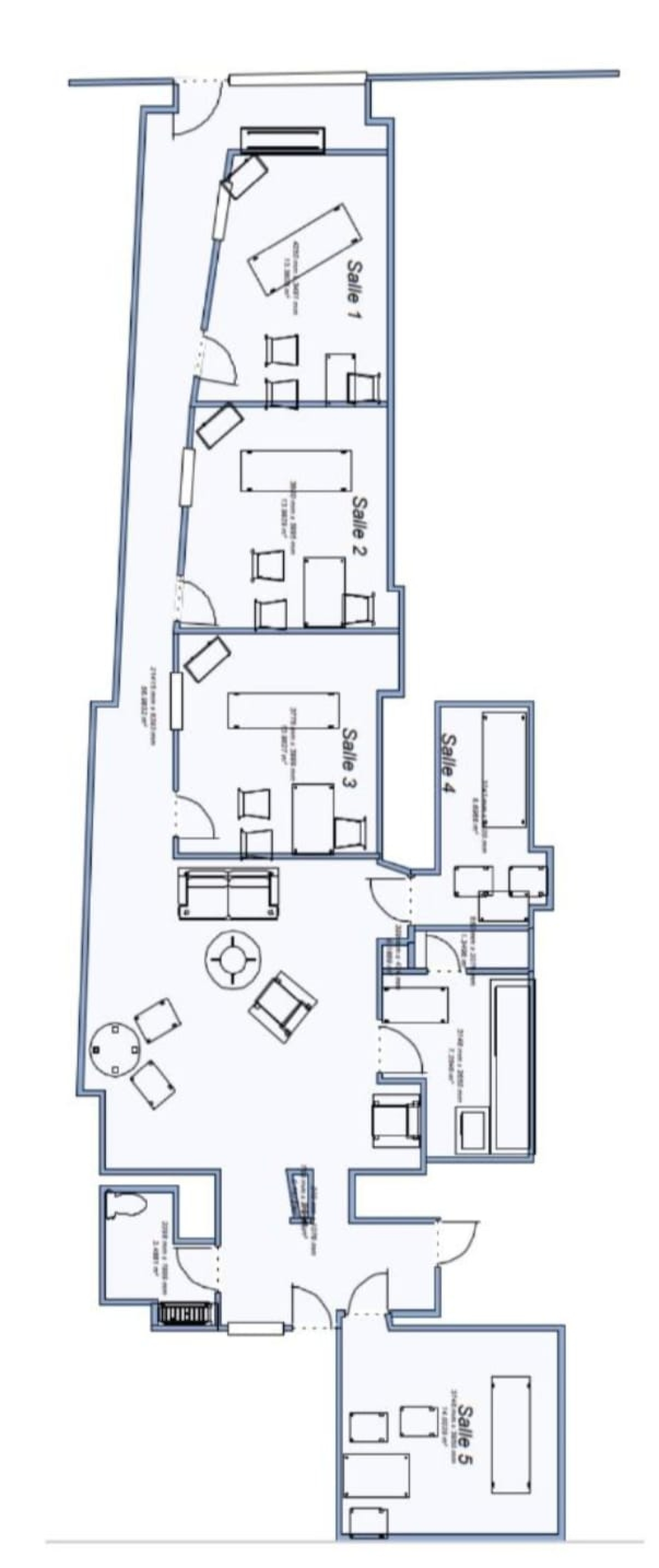
À vendre, un local à destination professionnelle ou commerciale d’une surface de 138 m², situé au rez-de-chaussée. Idéalement situé, à seulement 9 minutes de l’autoroute A43, à 35 minutes de Chambéry et Aix-les-Bains, à 55 minutes du centre de Grenoble et à 1h du centre de Lyon, ce local bénéficie d’un emplacement stratégique avec une grande visibilité grâce à sa vitrine donnant sur la rue principale.

L’espace, en parfait état et rénové avec goût, est accessible aux personnes à mobilité réduite (PMR) et dispose de nombreux atouts, tels qu’une salle commune de 40 m², une cuisine équipée, une buanderie, ainsi qu’un jardin privatif de 80 m² avec une vue agréable sur la rivière du Guier.

Le local comprend :

  • 3 bureaux de plain-pied de 13 m²,

  • 1 bureau de plain-pied de 9 m²,

  • 1 bureau de 13 m², accessible par 4 marches,

  • 1 toilette PMR.

  • Une grande cave de plus de 50m²,

Le chauffage est assuré par une pompe à chaleur réversible dans l’espace central et la salle 5, tandis que les autres bureaux sont chauffés par des radiateurs électriques programmables à inertie. Le bien dispose également de 2 climatiseurs réversibles, assurant un confort optimal toute l'année. Le local est également équipé d’un système de vidéosurveillance, d’enceintes intégrées dans le faux plafond et de portes avec verrouillage à code pour sécuriser les accès individuels à chaque bureau. Un double vitrage est installé sur l’ensemble du local.

Le local dispose également d’une cave de plus de 80 m², idéale pour du stockage. De plus, de nombreuses places de parking gratuites sont situées à proximité. Ce bien est parfait pour toute activité nécessitant un espace moderne et fonctionnel.

Caractéristiques de ce bien

  • Surface 138 m²
  • carrez 138 m²
  • terrain 80 m²
  • Chauffage individuel : radiateur (pompe à chaleur)
  • 2 niveau(x)

Diagnostics énergétiques

Consommation énergétique
A B C D E F G
Emission de gaz à effet de serre
A B C D E F G
DPE ANCIENNE VERSION

Informations financières

Prix de vente inclus TTC honoraires 180 000 €
Taxe foncière annuelle 840 €

Informations de copropriété

Copropriété Oui

Calcul des mensualités

* Champs obligatoires